Chalé Modelo 07A | Espaço, Privacidade e Arquitetura de Alto Padrão

Modelo 07A

Descrição e Detalhes

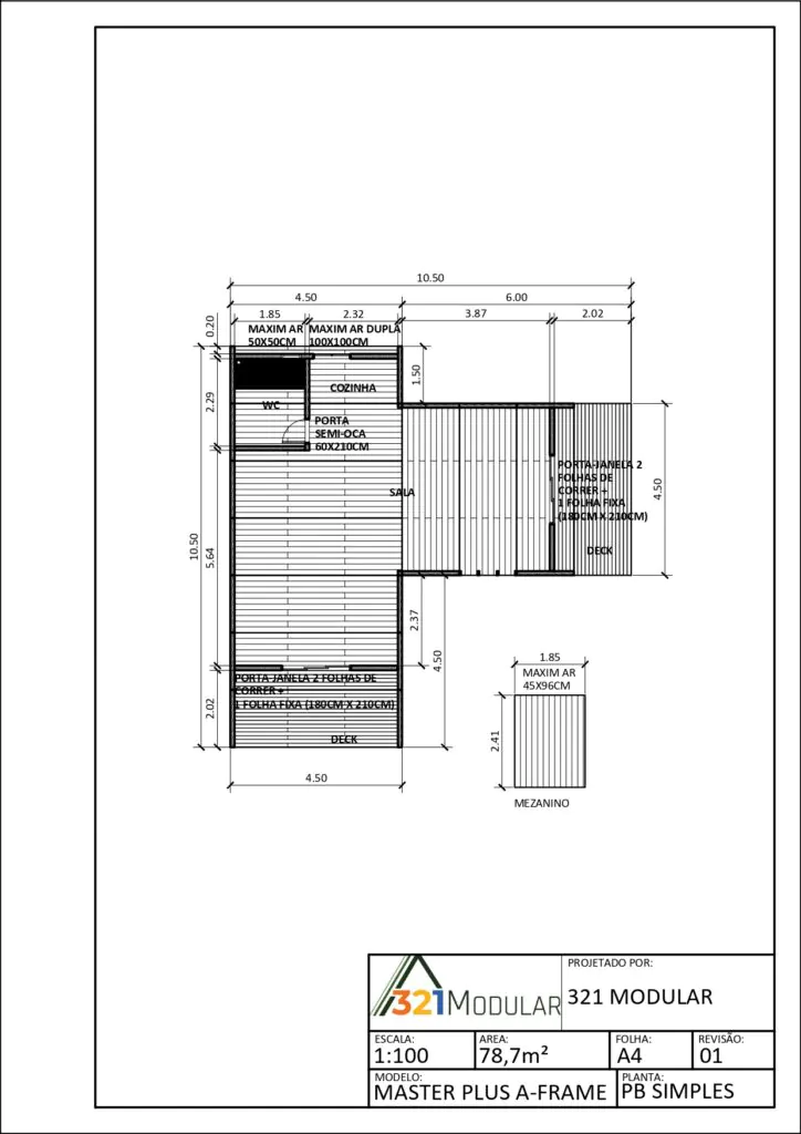
O Chalé Modelo 07A representa um novo nível dentro da linha, ampliando o conceito de integração e conforto para entregar um espaço mais completo, versátil e sofisticado. Com 78,7m² de área total, este projeto foi desenvolvido para ir além de um ambiente único, permitindo a criação de diferentes espaços com mais privacidade e funcionalidade.

O modelo evolui ao oferecer maior área interna, possibilitando layouts mais arrojados e bem definidos. Essa flexibilidade permite separar ambientes de forma inteligente, garantindo conforto no dia a dia sem abrir mão da sensação de amplitude e integração.

O resultado é um chalé que se aproxima do conceito de moradia definitiva, ideal para famílias que buscam um refúgio acolhedor, com identidade e qualidade de vida.

As amplas aberturas mantêm a forte conexão com o ambiente externo, favorecendo a entrada de luz natural e a ventilação, criando espaços leves, iluminados e extremamente agradáveis de viver.

Produzido em madeira de pinus tratado e com processo industrial, o projeto garante precisão construtiva, agilidade na execução e alta durabilidade. A madeira, como elemento central, eleva o padrão do ambiente: proporciona conforto térmico, sensação de acolhimento, bem-estar e uma nobreza natural que transforma o espaço em um verdadeiro lar. Além disso, reforça a conexão com a natureza, criando um ambiente mais humano, equilibrado e convidativo.

O Modelo 07A é a escolha ideal para quem deseja unir arquitetura diferenciada, espaço generoso e conforto em um único projeto, seja para viver ou para investir em uma proposta de alto valor agregado.

Destaques do Projeto

  • 78,7m² com ampla área interna e múltiplas possibilidades de layout
  • Espaços que permitem mais privacidade sem perder integração
  • Projeto inspirado na linha Latus, com evolução em metragem e conforto
  • Ambientes ideais para uso familiar ou moradia definitiva
  • Grandes aberturas: mais luz natural e ventilação
  • Estrutura em madeira de pinus tratado: durabilidade, aconchego e sofisticação natural
  • Produção industrial: precisão, qualidade e rapidez na execução
  • Alto padrão: ideal para moradia ou investimento premium

78,70m²

1 banheiro.

1 Quarto.

1 Deck externo.›

Panorâmico

1 Mezanino

CONTATO

Converse com nosso time e descubra como levar a 321 Modular para a sua região