Chalé Modelo 06C | Amplitude, Integração e Sofisticação Premium

Modelo 06C

Descrição e Detalhes

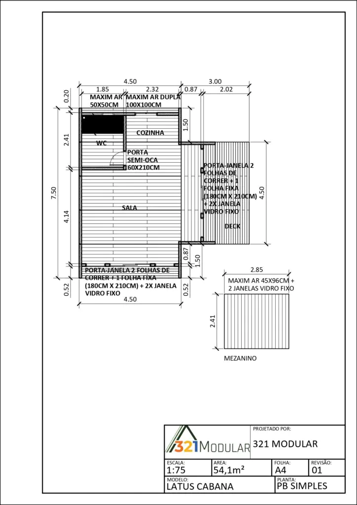
O Chalé Modelo 06C eleva o conceito de integração e conforto a um novo nível, combinando arquitetura marcante com uma experiência de alto padrão. Com 54,1m² de área total, este modelo amplia os diferenciais da linha Latus, entregando ainda mais espaço, fluidez e sofisticação.

A presença das paredes laterais, característica dos modelos cabana, proporciona maior volume interno e altura útil, criando ambientes mais amplos e confortáveis. Esse ganho estrutural permite um mezanino mais generoso, tornando o espaço ainda mais funcional e agradável tanto para uso contínuo quanto para estadias de curta duração.

Mantendo o grande destaque da linha, as amplas aberturas garantem uma integração quase total entre interior e exterior, favorecendo a entrada de luz natural e a ventilação cruzada. O resultado é um ambiente leve, iluminado e altamente convidativo — perfeito para quem busca uma experiência diferenciada e está disposto a investir mais por isso.

Produzido em madeira de pinus tratado e com processo industrial, o chalé oferece precisão construtiva, agilidade na execução e elevada durabilidade. A madeira, como protagonista, imprime ao projeto uma estética sofisticada e atemporal, além de proporcionar conforto térmico, sensação de acolhimento, bem-estar e uma nobreza natural que valoriza cada detalhe do ambiente. É um material que reforça a conexão com a natureza e transforma o espaço em um verdadeiro refúgio.

Charmoso e com acabamento de alto padrão, o Modelo 06C é ideal para quem deseja se posicionar no segmento premium, seja para locação de alto valor agregado ou para viver com mais qualidade, conforto e estilo.

Destaques do Projeto

  • 54,1m² com maior amplitude e conforto interno
  • Paredes laterais: mais volume, altura e sensação de espaço
  • Mezanino amplo e confortável
  • Grandes aberturas: integração total, luz natural e ventilação cruzada
  • Estrutura em madeira de pinus tratado: durabilidade, aconchego e sofisticação natural
  • Produção industrial: qualidade, precisão e rapidez na obra
  • Design premium: ideal para locação de alto padrão ou moradia diferenciada

54,1m²

1 Banheiro

1 Quarto

Deck externo

1 Mezanino

CONTATO

Converse com nosso time e descubra como levar a 321 Modular para a sua região