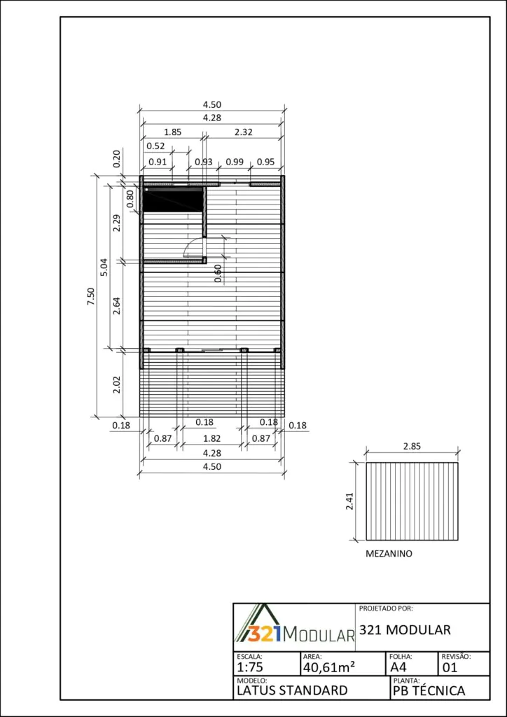
Latus Standard - 40,61m² | Cabana compacta, aconchegante e ideal para turismo de experiência.
O modelo Latus Standard foi pensado para quem busca um chalé compacto, mas sem abrir mão do conforto. Com 40,61m², o projeto traz mezanino, sala e cozinha integrados, deck externo e paredes laterais que aumentam o volume interno, criando uma atmosfera mais ampla e acolhedora.
Seu estilo de cabana aconchegante transmite conforto e acolhimento, sendo perfeito para investidores que desejam apostar em pousadas, turismo de experiência e locações no estilo Airbnb.
Construído em madeira de pinus autoclavada e selecionada, com tratamento contra cupins e apodrecimento, o chalé conta com paredes duplas e instalações embutidas, além de banheiro com revestimento em fibra de vidro. A cobertura é feita em telha trapezoidal de aluzinco com pintura eletrostática e isolamento em EPS de 32mm, garantindo excelente desempenho térmico e acústico. As esquadrias em eucalipto maciço completam o design rústico e elegante.
Com montagem rápida, custos competitivos e excelente custo-benefício, o Latus Standard ainda se destaca pela sustentabilidade, sendo construído com madeira de reflorestamento. Graças à modulação da 321Modular, pode ser personalizado conforme a necessidade do cliente em espaço, arquitetura ou investimento.
40,61m²
1 Banheiro
Mezanino (1 dormitório elevado)
Deck externo
CONTATO