Chalé Modelo 08A | O Máximo em Integração, Espaço e Sofisticação

Modelo 08A

Descrição e Detalhes

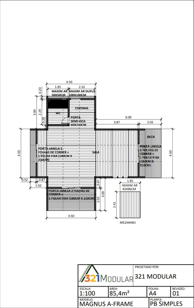
O Chalé Modelo 08A representa o ponto mais alto da linha, um projeto pensado para quem busca o máximo em conforto, integração e sofisticação. Com 85,4m² de área total, este modelo entrega uma experiência completa, onde arquitetura e bem-estar se encontram em equilíbrio.

Seus espaços amplos e integrados foram projetados para proporcionar fluidez e liberdade, criando ambientes que se conectam de forma natural entre si e com o exterior. A integração máxima entre áreas internas e externas transforma o chalé em um verdadeiro refúgio, ideal para viver momentos únicos com conforto e exclusividade.

As grandes aberturas potencializam a entrada de luz natural e a ventilação, criando um ambiente leve, iluminado e extremamente agradável. Cada detalhe foi pensado para valorizar a experiência de uso e elevar a percepção de qualidade do espaço.

Produzido em madeira de pinus tratado e com processo industrial, o Modelo 08A garante precisão construtiva, rapidez na execução e alta durabilidade. A madeira, como elemento central, traz atributos que vão além da estética: oferece conforto térmico, sensação de acolhimento, bem-estar e uma nobreza natural que transforma o ambiente em um espaço sofisticado e ao mesmo tempo acolhedor. É essa combinação que cria uma conexão genuína com a natureza e torna o chalé ainda mais especial.

O resultado é um projeto que vai além do conceito de chalé, posicionando-se como um verdadeiro refúgio de alto padrão — ideal para quem deseja viver com mais qualidade ou investir em uma proposta exclusiva, com alto valor agregado.

Destaques do Projeto

  • 85,4m² com ampla integração e fluidez dos espaços
  • Conexão total entre ambientes internos e externos
  • Grandes aberturas: mais luz natural e ventilação
  • Design A-frame de alto padrão
  • Estrutura em madeira de pinus tratado: durabilidade, aconchego e sofisticação natural
  • Produção industrial: precisão, qualidade e rapidez na obra
  • Ideal para moradia de alto padrão ou locação premium
  • Projeto exclusivo com alto potencial de valorização

85,4m²

1 banheiro.

1 Quarto.

Deck externo

1 Mezanino

CONTATO

Converse com nosso time e descubra como levar a 321 Modular para a sua região