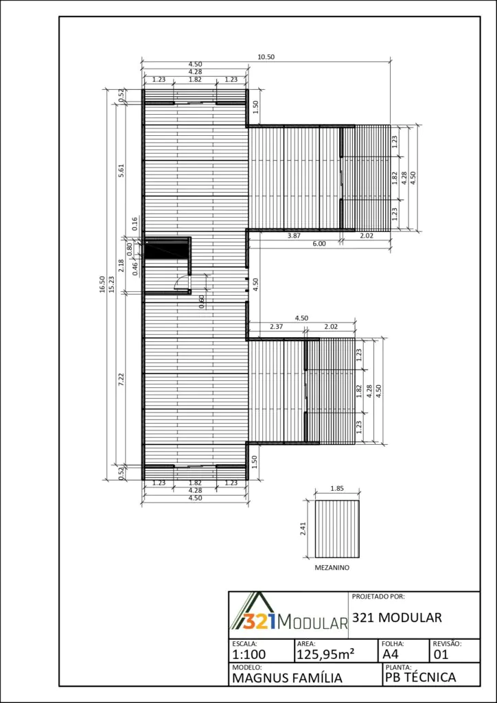
Magnus Família – 125,95m² | Chalé A-Frame amplo com mezanino, deck externo e múltiplas aberturas laterais.

MAGNUS FAMÍLIA

Descrição e Detalhes

O Magnus Família foi pensado para quem busca espaço, estilo e integração com a natureza. Com 125,95m², é um chalé em estilo A-Frame moderno e marcante, que combina amplitude interna com design acolhedor. Seu layout privilegia áreas amplas, com sala e cozinha integradas, além de um mezanino versátil que amplia as possibilidades de uso.

O destaque fica para o telhado panorâmico e as múltiplas aberturas laterais, que permitem iluminação natural abundante e total conexão com o entorno. O deck externo completa a experiência, criando um ambiente perfeito para encontros em família ou momentos de relaxamento.

A estrutura é executada em madeira de pinus autoclavada e selecionada, com tratamento industrial contra cupins e apodrecimento, assegurando durabilidade e resistência. As paredes são duplas, com todas as instalações embutidas, o que garante acabamento refinado e praticidade. O banheiro recebe revestimento em laminado de fibra de vidro, de alta durabilidade e fácil manutenção. A cobertura é composta por telhas trapezoidais em aluzinco com pintura eletrostática e isolamento em EPS de 32mm, oferecendo excelente conforto térmico e acústico. Já as esquadrias em eucalipto maciço reforçam a sofisticação e o caráter sustentável do projeto.

Indicado para famílias, grupos de amigos e uso em moradia ou lazer, o Magnus Família une rapidez de montagem, custos precisos, sustentabilidade e possibilidade de personalização. Um modelo ideal para quem busca um lar espaçoso ou um investimento seguro em turismo e aluguel de temporada.

125,95m²

1 Banheiro

2 Quarto

Deck externo

Panorâmico

CONTATO

Converse com nosso time e descubra como levar a 321 Modular para a sua região