Magnus Gourmet – 105,70m² | Chalé A-Frame com mezanino, telhado panorâmico e amplo espaço gourmet integrado.

MAGNUS GOURMET

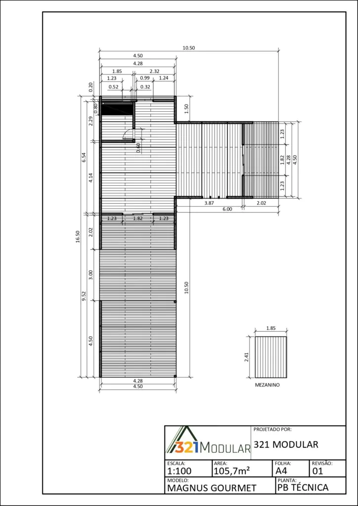
Descrição e Detalhes

O Magnus Gourmet foi desenvolvido para quem valoriza momentos de convivência e experiências únicas em contato com a natureza. Com 105,70m², este chalé em estilo A-Frame moderno une amplitude, design marcante e funcionalidade. O projeto traz mezanino, sala e cozinha integrados e um deck externo generoso, que se conecta a um espaço gourmet amplo e convidativo — ideal para encontros em família, confraternizações e lazer.

O telhado panorâmico garante iluminação natural abundante, ventilação e uma sensação de integração total com o ambiente externo. A combinação de espaço interno e áreas externas funcionais cria um refúgio perfeito para relaxar, morar ou investir em turismo e aluguel de temporada.

A estrutura é feita com madeira de pinus autoclavada e selecionada, tratada industrialmente contra cupins e apodrecimento, garantindo resistência e durabilidade. As paredes são duplas e com todas as instalações embutidas, o que proporciona acabamento de alto padrão e praticidade. Os banheiros recebem revestimento em laminado de fibra de vidro, de fácil manutenção e alta durabilidade. A cobertura utiliza telhas trapezoidais em aluzinco com pintura eletrostática e isolamento em EPS de 32mm, assegurando excelente conforto térmico e acústico. As esquadrias em eucalipto maciço reforçam o estilo sofisticado e sustentável.

Indicado para famílias e grupos de amigos, o Magnus Gourmet é perfeito para uso como moradia, sítios de lazer ou locações de fim de semana. Além da rapidez de montagem e custos precisos, oferece a possibilidade de personalização modular, tornando-se um projeto versátil e de alto valor agregado para investimento ou uso pessoal.

CONTATO

Converse com nosso time e descubra como levar a 321 Modular para a sua região